WDS SL 60 — Solución ideal para balcones y galerías españolas. Donde una ventana abatible "se come" el espacio útil, el sistema corredera es insustituible. Las hojas se deslizan paralelas entre sí, sin interferir con los tendederos, armarios o flores del alféizar.
Por qué es mejor que el aluminio normal:
- Más cálido al tacto: El PVC tiene baja conductividad térmica. En invierno el marco no se congela, y en verano no se calienta con el sol, como los "correderos" de aluminio baratos.
- Silencio: El plástico absorbe las vibraciones. El sonido de la lluvia o el viento ya no resonará por toda la vivienda.
- Protección contra el polvo: El sistema está equipado con junta de fieltro de calidad y piezas de relleno especiales en los puntos de unión de las hojas, creando una barrera fiable contra el polvo urbano y el viento.
Es la mejor opción para el acristalamiento de zonas frías, terrazas de verano o separación de cocina y lavadero.
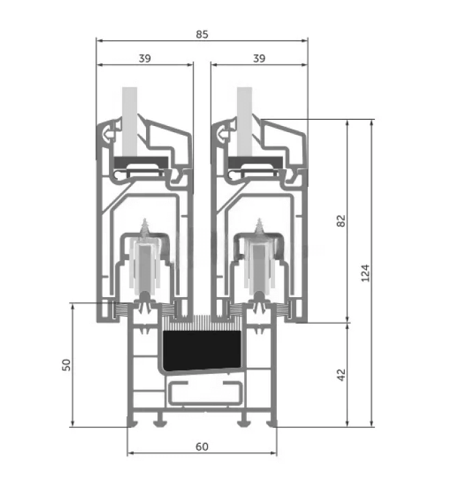
Especificaciones Técnicas
Detalles
Ahorro de espacio. Sistema corredera de PVC más cálido y silencioso que el aluminio antiguo.
Parámetros constructivos del sistema:
- Profundidad de montaje: 60 mm (2 carriles) / 106 mm (3 carriles).
- Número de cámaras: 3 cámaras.
- Tipo de apertura: Corredera paralela.
- Sellado: Junta de cepillo con inserciones especiales para protección contra polvo y ruido.
Dimensiones máximas:
- Tamaño máximo de hoja: 1500 mm x 1500 mm (ventana) / 1600 mm x 2300 mm (puerta).
- Peso máximo de hoja: hasta 100 kg.
Acristalamiento:
- Espesor de relleno: hasta 18-20 mm (vidrio simple o acristalamiento de una cámara).
Ergonomía
Ahorro del 100% de espacio

Solución inteligente
Mosquitera corredera

Confort
Sustitución del aluminio

WDS SL60
Ahorro de espacio. Sistema corredera de PVC más cálido y silencioso que el aluminio antiguo.
Más Ideas e Inspiración
Estos son algunos ejemplos de nuestro trabajo con el perfil WDS SL60. Toda esta inspiración es para usted y solo para usted.
Estamos trabajando en mantener los datos actualizados. Contáctenos si necesita materiales actualizados.
Opciones de Financiación
Disfrute de su compra ahora y páguelo a plazos utilizando nuestros servicios de financiación.
Más detallesNo Olvide Añadir
Elementos adicionales y accesorios que harán su hogar aún más confortable
Mosquiteras
Manillas con Cerradura
Laminación
Elementos Decorativos
Compare con Perfiles Similares
Soluciones alternativas de otros fabricantes
WDS SL76
Rehau High-Design Slide
Rehau Synego Slide
Rehau Panorama Swing
Disponible en Su Región
Trabajamos en toda España
Dejar una reseña
Reseñas de clientes
Descubra lo que la gente dice al respecto
Aún no hay reseñas. ¡Sea el primero!
FAQs
Preguntas Frecuentes sobre WDS SL60
¿Qué tan hermético es este sistema?
Los sistemas correderos usan sellado de cepillo (fieltro), no junta de goma a presión. Protegen muy bien de la lluvia y el viento, pero no proporcionan el 100% de estanqueidad como las ventanas abatibles. Para habitaciones recomendamos WDS 76, y SL 60 es ideal para balcones.
¿Se puede poner doble acristalamiento?
Sí, el sistema está diseñado para instalar vidrio de 4-6 mm o acristalamiento de una cámara de 18 mm. Recomendamos el doble acristalamiento — reducirá significativamente el ruido exterior.
¿Cuántas hojas se pueden hacer?
Podemos fabricar estructuras de 2, 3, 4 o incluso 6 hojas. Son posibles esquemas de apertura donde todas las hojas se desplazan hacia un lado, abriendo 2/3 del hueco.
¿Son fiables las ruedas?
Utilizamos ruedas reforzadas con revestimiento de polímero. Garantizan un deslizamiento suave y silencioso de la hoja durante muchos años, sin desgastar el carril de aluminio.


















