Kömmerling 88 MD es la cúspide del pensamiento ingenieril en sistemas de PVC. La profundidad de montaje de 88 mm y siete cámaras de aire dentro del perfil permiten alcanzar indicadores increíbles de aislamiento térmico. Esta ventana literalmente bloquea el calor exterior, manteniendo el microclima interior incluso sin uso activo del aire acondicionado.
El sistema está diseñado para la instalación de pesados acristalamientos de triple cámara de hasta 56 mm de espesor. Si su proyecto requiere certificación Passivhaus o simplemente quiere lo mejor que existe actualmente en la industria del acristalamiento, el 88 MD no tiene competencia.
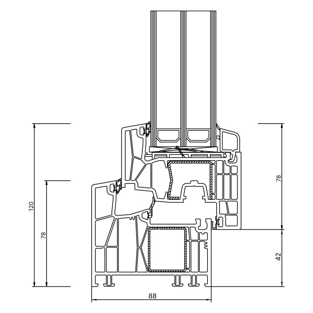
Especificaciones Técnicas
Detalles
Máxima protección contra el calor y el ruido. El sistema más grueso y potente para quienes quieren ahorrar al máximo en aire acondicionado. Habrá silencio absoluto en casa, incluso si las ventanas dan a una carretera transitada.
Parámetros constructivos del sistema:
- Profundidad de montaje: 88 mm.
- Estructura del perfil: Sistema de 7 cámaras con insertos termoaislantes en las cámaras.
- Estándar: Optimizado para casas de consumo energético cero (Certified Passivhaus System).
- Sistema de sellado: Triple junta con sellador de galce especial para máxima presión.
- Refuerzo: Sección de acero cerrada de alta resistencia para cargas extremas.
Opciones de acristalamiento y relleno:
- Espesor máximo de relleno: hasta 56 mm.
- Tipos de relleno: Acristalamientos de triple cámara con kriptón/argón, paquetes de vacío de nueva generación.
Dimensiones máximas de las estructuras:
- Altura máxima de la hoja: hasta 2500 mm.
- Anchura máxima de la hoja: hasta 1500 mm.
Características certificadas:
- Aislamiento térmico del perfil (Uf): 0,95 W/m²K.
- Protección térmica de la ventana (Uw): hasta 0,72 W/m²K.
- Aislamiento acústico: hasta 48-50 dB (el mejor indicador de su clase).
- Durabilidad: Diseñado para una vida útil de más de 50 años.
Confort
Aislamiento acústico de referencia

Eficiencia energética
Tecnología Passivhaus

Tecnología
Acristalamiento de alta potencia

Kömmerling 88 MD
Máxima protección contra el calor y el ruido. El sistema más grueso y potente para quienes quieren ahorrar al máximo en aire acondicionado. Habrá silencio absoluto en casa, incluso si las ventanas dan a una carretera transitada.
Más Ideas e Inspiración
Estos son algunos ejemplos de nuestro trabajo con el perfil Kömmerling 88 MD. Toda esta inspiración es para usted y solo para usted.
Estamos trabajando en mantener los datos actualizados. Contáctenos si necesita materiales actualizados.
Opciones de Financiación
Disfrute de su compra ahora y páguelo a plazos utilizando nuestros servicios de financiación.
Más detallesNo Olvide Añadir
Elementos adicionales y accesorios que harán su hogar aún más confortable
Mosquiteras
Manillas con Cerradura
Laminación
Elementos Decorativos
Compare con Perfiles Similares
Soluciones alternativas de otros fabricantes
Kömmerling EuroFutur Elegance
Kömmerling Xtrem 76 AD
Kömmerling Xtrem 76 MD
Rehau Euro-design 70
Rehau Synego
Rehau Brillant-Design 70
Dejar una reseña
Reseñas de clientes
Descubra lo que la gente dice al respecto
Aún no hay reseñas. ¡Sea el primero!
FAQs
Preguntas Frecuentes sobre Kömmerling 88 MD
¿Qué aporta el certificado Passivhaus al propietario de una casa en España?
El certificado confirma que el sistema 88 MD es capaz de mantener el calor o el frescor dentro de la casa prácticamente sin ayuda de fuentes externas (calefacción o aire acondicionado). Para España, esto significa que incluso en el calor más intenso, el interior de la casa mantendrá un microclima confortable, y sus gastos de electricidad serán los mínimos posibles.
¿Por qué la profundidad de montaje de 88 mm se considera el estándar de la clase premium?
Los 88 mm permiten alojar dentro del perfil 7 cámaras de aire independientes y tres juntas de sellado. Este grosor crea una barrera infranqueable contra las influencias térmicas externas. Es el sistema más macizo y silencioso de la gama Kömmerling, creado para proyectos donde no se permiten compromisos en calidad.
¿Cuánto más silenciosa será la casa después de instalar el sistema 88 MD?
Utilizando acristalamientos especiales de aislamiento acústico, el sistema 88 MD es capaz de reducir el nivel de ruido en 50 dB. Esto permite vivir cómodamente incluso junto a una vía férrea, aeropuerto o autopista transitada. Los sonidos del mundo exterior prácticamente desaparecen por completo, convirtiendo la casa en una zona de absoluta tranquilidad.
¿Qué tipos de acristalamiento se pueden instalar en un perfil tan ancho?
El galce de montaje permite instalar rellenos de hasta 56 mm de espesor. Puede pedir potentes acristalamientos de triple cámara con dos vidrios selectivos y relleno de argón. También permite utilizar vidrios de protección gruesos tipo laminado (6+6 u 8+8 mm) para máxima seguridad.
¿En qué consiste el carácter premium de este sistema además de sus características?
Es un producto insignia en el que se ha pensado cada detalle: desde la estática mejorada que permite hacer hojas de enormes dimensiones, hasta las opciones exclusivas de acabado superficial. Las ventanas 88 MD tienen un aspecto macizo, sólido y subrayan el alto estatus del inmueble, aumentando significativamente su valor de mercado.
¿Cuánto tiempo durará este sistema con el cuidado adecuado?
El sistema 88 MD está diseñado para una vida útil de más de 50 años. Gracias a la enorme reserva de resistencia del perfil, el refuerzo mejorado y los herrajes protegidos, la ventana conserva su funcionalidad y aspecto durante varias generaciones. Es una inversión que se justifica con décadas de servicio impecable.



















