WDS 76 AD — Evolución en cada milímetro. Este sistema representa el estándar europeo moderno de acristalamiento, que está reemplazando gradualmente a las ventanas habituales de 70 milímetros. Los 6 mm adicionales de profundidad de montaje (76 mm) dan una enorme ventaja en rigidez de la estructura y posibilidades de acristalamiento.
Por qué elegir la plataforma de 76 mm:
- Máxima transparencia: Gracias a la geometría moderna, el perfil es más bajo y el hueco de luz más grande. Obtiene un 10% más de luz natural en comparación con los marcos anchos antiguos.
- Súper silencio: Es el sistema más asequible de nuestro catálogo donde se puede instalar un acristalamiento de 48 mm de espesor. Anteriormente, esta opción solo estaba disponible en series de élite caras.
- Sistema AD (Arrest Design): La configuración clásica con dos juntas de sellado asegura un cierre suave de la hoja y un mantenimiento fácil (sin reborde intermedio donde se acumula el polvo), manteniendo alta estanqueidad.
Equilibrio ideal entre tecnología y precio para el acristalamiento de pisos modernos en Barcelona, Valencia y Madrid.
Especificaciones Técnicas
Detalles
Nuevo estándar europeo. Sistema de 76 mm que permite instalar potentes acristalamientos sin sobrecoste por premium.
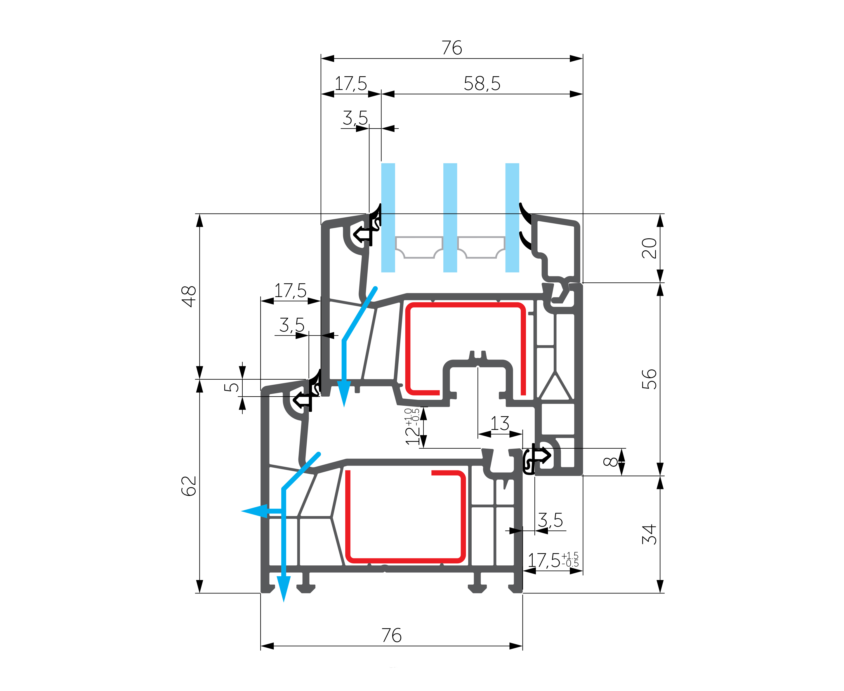
Parámetros constructivos del sistema:
- Profundidad de montaje: 76 mm (base aumentada para mejor estabilidad).
- Construcción del perfil: 5 cámaras con geometría interna optimizada para distribución eficiente del calor.
- Espesor de pared exterior: Clase A (según DSTU/EN) — mayor resistencia de las uniones angulares y durabilidad.
- Diseño: Perfiles estrechos (baja combinación marco+hoja) permiten un 5-7% más de luz natural.
- Sellado: 2 circuitos de junta TPV duradera moderna en color negro o gris.
- Refuerzo: Refuerzo cuadrado o en forma de U de acero galvanizado de hasta 2,0 mm de espesor.
Opciones de acristalamiento:
- Espesor máximo de relleno: hasta 48 mm.
- Acristalamientos recomendados: Unidades de dos cámaras de 40 mm o 44 mm con dos vidrios de bajo emisivo y kriptón/argón.
- Soluciones de aislamiento acústico: Posibilidad de instalar vidrios gruesos de diferente espesor (6-8 mm) para protección contra el ruido urbano.
Dimensiones máximas de la estructura:
- Ancho máximo de hoja: hasta 1100 mm.
- Altura máxima de hoja: hasta 2350 mm.
- Aplicación: Ventanas panorámicas en pisos, acristalamiento de chalets, puertas balconeras.
Características certificadas:
- Coeficiente de resistencia térmica (Ro): hasta 0,93 m²°C/W.
- Aislamiento térmico del perfil (Uf): ~1,2 W/m²K.
- Aislamiento acústico (Rw): hasta 45-47 dB (con acristalamiento apropiado).
- Permeabilidad al aire: Clase 4.
- Estanqueidad al agua: Clase 9A (máximo nivel de protección contra lluvia torrencial).
Acústica
Acristalamiento 48 mm

Fiabilidad
Estática moderna

Diseño
Más luz

WDS 76 AD (76 mm)
Nuevo estándar europeo. Sistema de 76 mm que permite instalar potentes acristalamientos sin sobrecoste por premium.
Más Ideas e Inspiración
Estos son algunos ejemplos de nuestro trabajo con el perfil WDS 76 AD (76 mm). Toda esta inspiración es para usted y solo para usted.
Estamos trabajando en mantener los datos actualizados. Contáctenos si necesita materiales actualizados.
Opciones de Financiación
Disfrute de su compra ahora y páguelo a plazos utilizando nuestros servicios de financiación.
Más detallesNo Olvide Añadir
Elementos adicionales y accesorios que harán su hogar aún más confortable
Mosquiteras
Manillas con Cerradura
Laminación
Elementos Decorativos
Compare con Perfiles Similares
Soluciones alternativas de otros fabricantes
WDS 5S
WDS 6S (70 mm)
WDS 7S (70 mm)
Rehau Euro-design 70
Rehau Synego
Rehau Brillant-Design 70
Disponible en Su Región
Trabajamos en toda España
Dejar una reseña
Reseñas de clientes
Descubra lo que la gente dice al respecto
Aún no hay reseñas. ¡Sea el primero!
FAQs
Preguntas Frecuentes sobre WDS 76 AD (76 mm)
¿Qué significa la designación AD?
AD (Anschlagdichtung) significa un sistema con dos juntas de sellado (exterior e interior). Es un diseño clásico probado que garantiza fiabilidad, facilidad de ajuste y un precio más asequible en comparación con los sistemas MD (tres juntas).
¿Por qué necesito 76 mm si hay 70 mm?
76 mm es una plataforma más moderna. Con una diferencia de precio de solo alrededor del 10-15%, obtiene la posibilidad de instalar acristalamientos más cálidos y silenciosos (48 mm frente a 40 mm de la serie 70), así como un marco más rígido.
¿Cuál es el aislamiento térmico de esta ventana?
El coeficiente de transmisión térmica del marco Uf es de 1,2 W/m²K. Con un buen acristalamiento, el valor total Uw puede alcanzar 0,8-0,9, lo que corresponde a altos estándares de ahorro energético de España.
¿Es difícil limpiar estas ventanas?
Al contrario, muy fácil. Gracias al sistema AD (ausencia de junta intermedia), el galce del marco permanece abierto y liso — se limpia fácilmente con un paño, sin sitios donde se acumule la suciedad.
¿Se pueden hacer puertas con este perfil?
Sí, el sistema WDS 76 AD tiene hojas de puerta reforzadas que permiten fabricar conjuntos de entrada y puertas de terraza con alto nivel de seguridad.
¿En qué es mejor WDS 76 que REHAU Euro 70 o VEKA Softline 70?
WDS 76 AD tiene mayor profundidad de montaje (76 mm frente a 70 mm), lo que permite instalar acristalamientos más gruesos de hasta 48 mm para mejor aislamiento acústico. Con calidad de perfil comparable, el precio de WDS es un 20-30% inferior gracias a la logística optimizada desde Ucrania. Todos los sistemas se fabrican según estándares europeos de calidad unificados.




















