Cortizo COR 4200 es el sistema corredera más versátil de la gama, que ha ganado popularidad gracias a su capacidad única de desaparecer. Es la solución ideal para salidas a balcones o terrazas en espacios reducidos. El principal "superpoder" de este modelo es la opción Galandage: las hojas pueden deslizarse hacia el interior de la cavidad de la pared, abriendo el hueco al 100%. Con este sistema se difuminan los límites entre el salón y el jardín, obteniendo un paso completamente despejado.
A pesar de la elegancia de las estructuras (el ancho visible de la hoja en el nudo central puede minimizarse), COR 4200 está equipado con una rotura de puente térmico completa, lo que lo hace apto para espacios habitables. Las guías de aluminio están reforzadas con inserciones de acero inoxidable, garantizando un deslizamiento increíblemente suave y ligero de las hojas incluso después de años de uso. Es la elección de quienes quieren obtener el máximo de luz y aire, aprovechando racionalmente cada metro cuadrado de superficie.
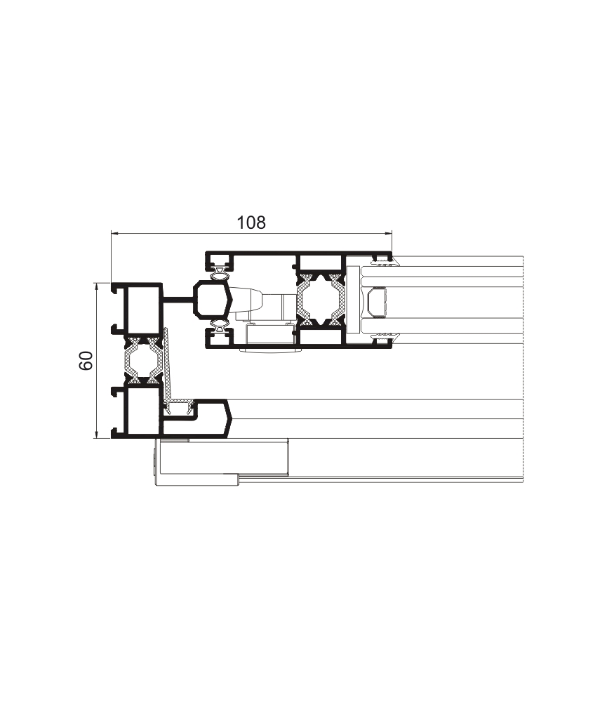
Especificaciones Técnicas
Detalles
Sistema corredera legendario con posibilidad de montaje oculto en la pared (Galandage). Equilibrio ideal entre ahorro de espacio, diseño moderno y funcionalidad.
Parámetros constructivos del sistema:
- Profundidad de montaje: Marco — 60 mm (2 raíles), 115 mm (3 raíles). Hoja — 33 mm (recta) o 37 mm (redondeada).
- Tipo de apertura: Corredera (Inline) con posibilidad de 1, 2, 3 y 4 hojas. Disponible versión Galandage (ocultación en pared).
- Aislamiento térmico: Tecnología RPT. Inserciones de poliamida de 14-20 mm (en marco) y 20-25 mm (en hoja).
- Material: Aleación de aluminio 6063 T5.
- Diseño: Posibilidad de elegir estética: líneas rectas modernas u hojas clásicas redondeadas.
- Guías: Perfil de aluminio con carril intercambiable de acero inoxidable para reducir el desgaste de los rodillos.
Posibilidades de acristalamiento:
- Espesor máximo de acristalamiento: hasta 26 mm.
- Tipos de acristalamiento: Vidrios de cámara simple, vidrio templado, laminado.
Dimensiones máximas y mecánica:
- Dimensiones máximas de hoja: Anchura hasta 1500 mm, Altura hasta 2600 mm.
- Peso de hoja: hasta 100 kg (por par de rodillos).
- Sellado: Cepillos de alta densidad con aleta de plástico central (fin-seal) para protección contra el viento.
Características certificadas:
- Aislamiento térmico del perfil (Uf): desde 3,0 W/m²K.
- Aislamiento térmico de la ventana (Uw): hasta 1,6 W/m²K (según vidrio).
- Estanqueidad al agua: Clase 7A.
- Permeabilidad al aire: Clase 3.
- Resistencia al viento: Clase C5.
Espacio
Tecnología Galandage

Confort
Suavidad de deslizamiento

Diseño
Flexibilidad estética

Cortizo COR 4200
Sistema corredera legendario con posibilidad de montaje oculto en la pared (Galandage). Equilibrio ideal entre ahorro de espacio, diseño moderno y funcionalidad.
Más Ideas e Inspiración
Estos son algunos ejemplos de nuestro trabajo con el perfil Cortizo COR 4200. Toda esta inspiración es para usted y solo para usted.
Estamos trabajando en mantener los datos actualizados. Contáctenos si necesita materiales actualizados.
Opciones de Financiación
Disfrute de su compra ahora y páguelo a plazos utilizando nuestros servicios de financiación.
Más detallesNo Olvide Añadir
Elementos adicionales y accesorios que harán su hogar aún más confortable
Mosquiteras
Manillas con Cerradura
Laminación
Elementos Decorativos
Compare con Perfiles Similares
Soluciones alternativas de otros fabricantes
Cortizo 4900 Corredera
Cortizo COR Vision
Cortizo COR Vision PLUS
Schüco ASE 60
Schüco ASE 80.HI
Schüco ASE 67 PD
Dejar una reseña
Reseñas de clientes
Descubra lo que la gente dice al respecto
Aún no hay reseñas. ¡Sea el primero!
FAQs
Preguntas Frecuentes sobre Cortizo COR 4200
¿Es difícil instalar el sistema Galandage (en la pared)?
El sistema Galandage requiere planificación en la fase de obra o reforma, ya que es necesario preparar una cavidad en la pared (normalmente de pladur o ladrillo). No es posible instalar esta ventana en un hueco ya terminado sin obras de ampliación de la pared.
¿Es suficiente un acristalamiento de 26 mm para el aislamiento térmico?
Un espesor de 26 mm es el estándar para sistemas correderos ligeros. Permite instalar un acristalamiento de cámara simple de calidad (dos vidrios y argón). Para el clima de España es más que suficiente, pero para zonas muy ruidosas o climas fríos es mejor considerar sistemas más potentes (por ejemplo, COR 4900).
¿Hay corrientes de aire en las ventanas correderas?
El sistema COR 4200 utiliza juntas de cepillo (felpa) que proporcionan una buena protección contra el viento y el polvo. Sin embargo, en términos de hermeticidad, cualquier sistema corredera (excepto los elevables-correderos) es ligeramente inferior a las ventanas practicables con junta de goma.
¿Se puede forzar esta puerta simplemente levantando la hoja?
No, el sistema está equipado con elementos antielevación en la parte superior del marco que bloquean el levantamiento de la hoja desde el exterior. Con la cerradura cerrada, es imposible retirar la parte móvil sin destruir la estructura.
¿Cómo se limpian las hojas si se superponen entre sí?
En la versión estándar, las hojas se superponen, por lo que para limpiar la cara exterior de la hoja interior es necesario tener acceso desde fuera (balcón). Sin embargo, la construcción permite, si es necesario, desmontar las hojas (por especialistas) para su mantenimiento.
¿Es necesario un umbral con el que se pueda tropezar?
El marco COR 4200 tiene una altura determinada, por lo que habrá un pequeño umbral. Sin embargo, se puede empotrar parcialmente en el suelo durante la instalación, haciendo la transición más suave y cómoda para el paso.



















