REHAU Synego is more than just windows and doors. It is your step towards a home filled with comfort, tranquility and warmth, where every detail serves your comfort. This premium profile system is created to give you a sense of reliability and serenity. Thanks to its thoughtful multi-chamber design, Synego creates a special atmosphere in your home, carefully preserving heat and significantly reducing heating costs. Forget about city noise - these windows will provide you with peace and quiet, and their sturdy construction will give you a sense of protection from uninvited guests.
Imagine how easy it is to maintain cleanliness: Synego's innovative smooth surface always looks impeccable, pleasing the eye with its shine. And design? There are no limits to your imagination here! Synego offers a huge selection of shapes, a rich palette of colors and textures, allowing you to create an interior that will reflect exactly your individuality. Whether modern minimalism or classic comfort - your new windows will be the perfect addition. Synego is a smart and beautiful solution for every home that brings practicality and environmental care into your daily life.
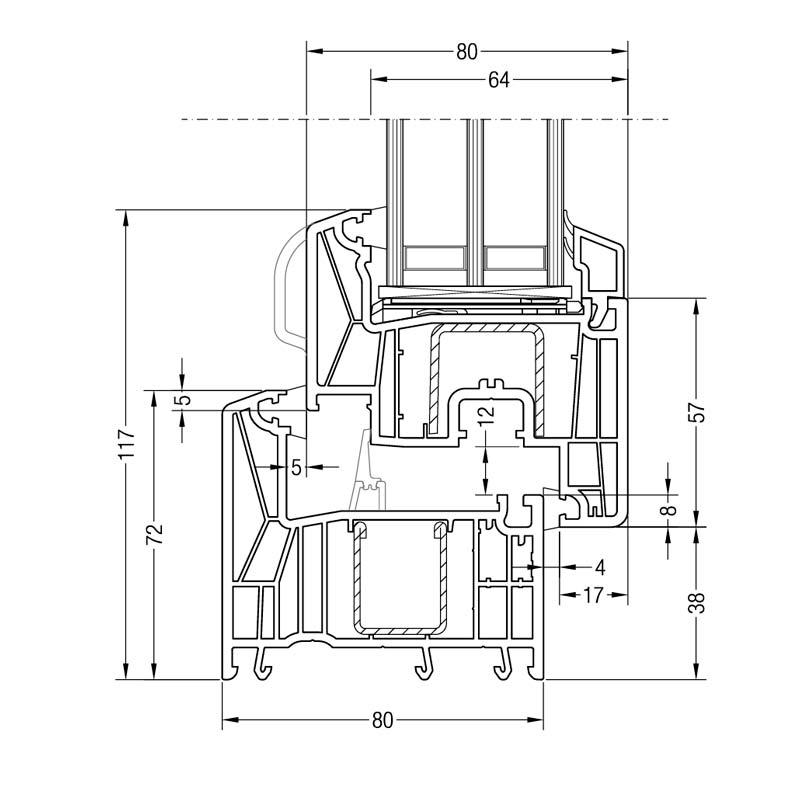
Technical Specifications
Details
7-chamber system with 80 mm depth, providing high thermal and sound insulation for comfortable living. HDF.
System Design Parameters:
- Installation depth: 80 mm.
- Profile construction: 7 air chambers in frame / 6 chambers in sash. This structure ensures high energy efficiency.
- Sealing system: 3 sealing circuits (MD system with center seal). The additional middle circuit reliably protects against drafts, dust and moisture.
- Surface: HDF (High Definition Finishing) — unique surface formula: perfectly smooth, with a glossy shine, maximally resistant to dirt.
- Material: RAU-PVC (unplasticized PVC) using EcoPuls technology (use of recycled core for eco-friendliness without loss of quality).
Glazing Options:
- Maximum glass unit thickness: up to 51 mm. Allows installation of multifunctional warm units and thick acoustic glass.
- Rebate depth: Optimized glazing rebate height minimizes condensation formation at the edge zone (spacer frame).
Certified Characteristics (according to DIN EN 14351-1):
- Profile thermal insulation (Uf): 0.94 W/m²K (for version with center seal).
- Complete window thermal insulation (Uw): up to 0.66 W/m²K (when using glass Ug = 0.5 W/m²K), exceeding modern heat-saving requirements.
- Sound insulation (Rw,p): up to 46 dB (high noise protection class).
- Burglary resistance: up to RC3 class (with reinforced hardware and bonded glazing).
- Air permeability: Class 4.
- Rain resistance: Class 9A.
Smile without effort.
Shine and smoothness

Invite the sun home.
Light in every corner

Peace in every rustle.
Quiet haven

Easy to open and close.
Reliable embrace

Stands firm, serves long.
Strong foundation

The air you breathe.
Fresh breeze

Rehau Synego
7-chamber system with 80 mm depth, providing high thermal and sound insulation for comfortable living. HDF.
Financing Options
Enjoy your purchase now and pay for it in installments using our financing services.
More detailsDon't Forget to Add
Additional elements and accessories that will make your home even more comfortable
Mosquito Nets
Handles and Locking Elements
Lamination
Decorative Elements
Compare with Similar Profiles
Alternative solutions from other manufacturers
Rehau Euro-design 70
Rehau Brillant-Design 70
Rehau Brillant-Design 80
Kömmerling EuroFutur Elegance
Kömmerling Xtrem 76 AD
Kömmerling Xtrem 76 MD
Leave a Review
Customer Reviews
Find out what people are saying about it
No reviews yet. Be the first!
FAQs
Frequently Asked Questions about Rehau Synego
What are the key features of Synego?
Installation depth of 80 mm, 7 chambers in the frame and 6 in the sash, excellent energy efficiency and comfort indicators.
What seal options are available (AD/MD)?
Synego is available in versions with two contours (AD) and with a middle contour (MD). The MD version additionally improves thermal and sound insulation.
What glass unit thickness is supported?
Up to 51 mm - energy-efficient triple glazed units with low-emissivity glass and warm spacer can be used.
What are the thermal and noise characteristics?
With correct configuration, Uw can reach ≤ 0.86 W/m²·K, sound insulation - approximately up to 46 dB (Rw).
Is steel reinforcement needed?
Yes, steel reinforcement is usually used to ensure rigidity, especially on large sizes and in laminated products.
What design options are there?
Smooth HDF surface, wide palette of laminations and KALEIDO colors, various beads, concealed hinges and designer handles.
What objects is Synego suitable for?
Ideal for modern housing with increased requirements for energy saving and silence; suitable for renovations as well.
Synego or Brillant-Design 80 / Geneo - what to choose?
Synego - optimum "price/efficiency". Brillant-Design 80 - emphasis on design. Geneo - maximum energy efficiency and large sizes thanks to RAU-FIPRO X composite.























