A rational choice for your home. Rehau Euro-Design 70 is a versatile entrance system. It is ideal as the main entrance door for standard apartments and cottages. It is also the best choice for a "secondary exit" — for example, from the living room to the terrace, winter garden, or garage.
Unlike lightweight balcony doors, the Euro-Design 70 features reinforced steel reinforcement, door hinges (designed for frequent opening), and a full-fledged lock. It strikes a balance between reliability and affordable price.
Technical Specifications
Details
Optimal 70 mm PVC entrance door with the best price-to-German-quality ratio. 5-chamber profile, glossy HDF surface and reliable security hardware.
System structural parameters:
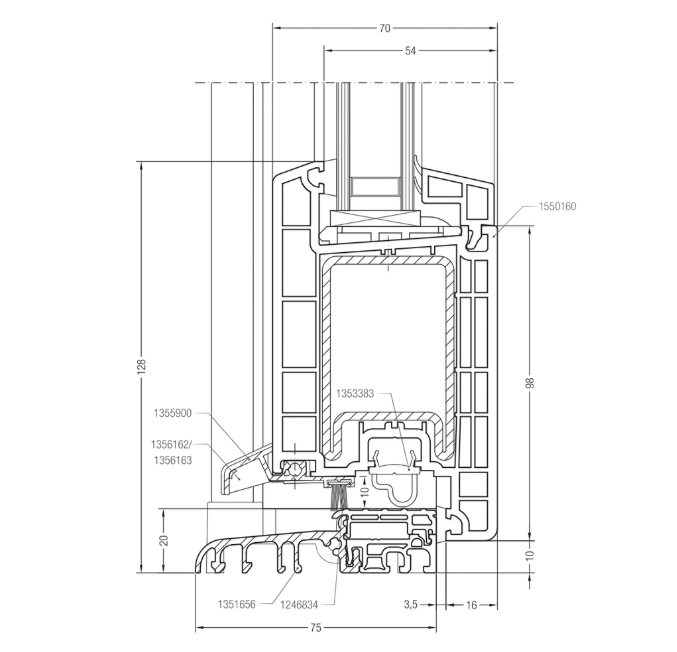
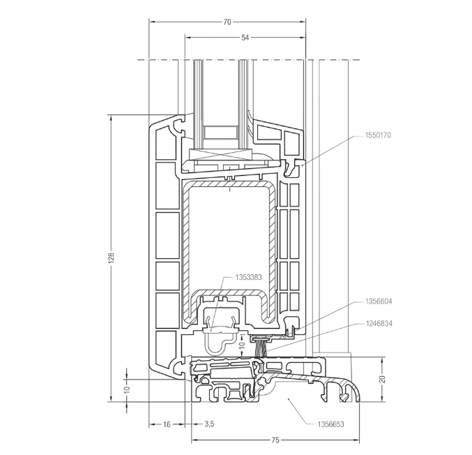
- Installation depth: 70 mm.
- Profile structure: 5 chambers (Frame) / 4 chambers (Sash).
- Surface design: Classic flat design with 15° bevels. Unlike the rounded Brillant, this system has stricter geometry.
- Reinforcement: Standard U-shaped or closed reinforcement is used (depending on dimensions), providing the necessary rigidity according to static requirements.
- Surface: Smooth, easy-to-clean PVC (Standard White).
- Threshold: Compatible with 20 mm aluminum threshold (warm contour).
Glazing options:
- Infill thickness: up to 41 mm.
- Glass unit types: Single-chamber (2 panes) and double-chamber (3 panes) energy-saving units.
- Glazing bead: Standard rectangular or beveled glazing bead.
Maximum dimensions:
- Single-leaf door: Width up to 1000 mm × Height up to 2150 mm.
- Sash weight: Optimized for sashes weighing up to 80-90 kg.
Certified characteristics (DIN EN 14351-1):
- Profile thermal insulation (Uf): 1.3 W/m²K.
- Door thermal insulation (Ud): up to 1.2 W/m²K.
- Sound insulation (Rw,p): up to 40 dB.
- Burglar resistance: Basic protection (RC1/RC2).
- Water tightness: Class 9A.
- Air permeability: Class 4.
Perfect smoothness
HDF Surface

Elegant 15° design
More Light

Comfort in any weather
Warm and Quiet

Rehau Euro-Design 70 Door
Optimal 70 mm PVC entrance door with the best price-to-German-quality ratio. 5-chamber profile, glossy HDF surface and reliable security hardware.
More Ideas and Inspiration
These are some examples of our work with Rehau Euro-Design 70 Door profile. All this inspiration is for you and only for you.
We are working on keeping data up-to-date. Contact us if you need fresh materials.
Financing Options
Enjoy your purchase now and pay for it in installments using our financing services.
More detailsDon't Forget to Add
Additional elements and accessories that will make your home even more comfortable
Mosquito Nets
Handles and Locking Elements
Lamination
Decorative Elements
Compare with Similar Profiles
Alternative solutions from other manufacturers
Rehau Brillant-Design 70 Door
Rehau Synego 80 Door
Rehau Geneo 86 Door
Kömmerling EuroFutur Puerta
Kömmerling 76 Puerta
Kömmerling 88 Puerta
Available in Your Region
We work throughout Spain
Leave a Review
Customer Reviews
Find out what people are saying about it
No reviews yet. Be the first!
FAQs
Frequently Asked Questions about Rehau Euro-Design 70 Door
What is the difference between Euro-Design and Brillant-Design?
The main difference is aesthetics. Brillant has rounded shapes, a more glossy surface, and is positioned as a premium design. Euro-Design has classic straight lines and is more affordable. Their technical characteristics (thermal and sound insulation) are virtually identical.
What properties is it best suited for?
It is an ideal choice for apartment renovations, secondary exits in cottages (e.g., to a boiler room or garden), and rental properties where reliability at a moderate budget is important.
Is it reliable against break-ins?
Yes, the profile has a 13 mm hardware groove offset, allowing for reinforced locking plates. The door can be equipped with anti-burglary hardware up to RC2 class.
Does it require special maintenance?
No, the Rehau surface is very smooth. It is sufficient to wipe it with a damp cloth and soapy solution a couple of times a year to keep it looking like new.
What are the size limitations?
Euro-Design is optimized for standard openings. The maximum recommended sash height is 2.15 meters. For taller and heavier doors, we recommend the Brillant or Synego series.
Is wood-effect lamination available?
Yes, the system is available in all standard Rehau colors, including Golden Oak, Anthracite, and Walnut. You can order the door colored on one or both sides.
















