WDS SL 76 — Стирает границу между домом и садом. Это инновационная система класса Smart Slide (Герметичная раздвижная), которая объединила в себе преимущества двух миров: удобство раздвижных дверей и полную герметичность классических распашных окон.
В чем революция?
В обычных раздвижках (слайдерах) используются щетки, которые пропускают воздух. В WDS SL 76 используется непрерывный контур резинового уплотнения. При повороте ручки створка смещается перпендикулярно раме и плотно прижимается к уплотнителю по всем 4 сторонам.
Результат:
- Вы можете ставить такие двери в отапливаемых гостиных, спальнях и детских — сквозняков не будет.
- Идеальная защита от косых дождей и штормовых ветров (DANA), частых на побережье Испании.
- Возможность создания огромных панорамных створок (до 3 метров шириной), которые открываются одним пальцем.
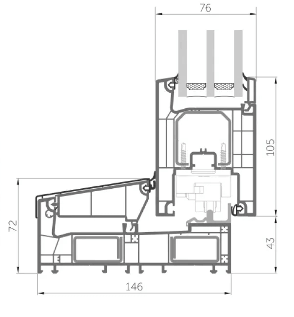
Технические характеристики
Детали
Гибрид слайдера и окна. 100% герметичность благодаря умному прижиму створки по всему периметру.
Конструктивные параметры системы:
- Монтажная глубина: 150 мм (рама) / 76 мм (створка).
- Тип открывания: Параллельно-сдвижной (створка выходит из плоскости и плавно отъезжает за глухую часть).
- Конструкция профиля: 5-камерная рама и 5-камерная створка, что обеспечивает высокие теплосберегающие показатели.
- Герметичность: В отличие от классических раздвижек, здесь используется высококачественное контурное уплотнение (не щетки), что исключает продувание.
- Порог: Специализированная алюминиевая направляющая с терморазрывом для защиты от промерзания в нижней зоне.
Возможности остекления:
- Максимальная толщина заполнения: до 48 мм.
- Рекомендованное решение: Двухкамерные энергосберегающие стеклопакеты с аргоном и мультифункциональным стеклом для панорамных зон.
Предельные размеры конструкций:
- Максимальная ширина конструкции: до 4000 мм.
- Максимальная высота створки: до 2500 мм.
- Максимальная ширина створки: до 2000 мм.
- Вес створки: до 160-200 кг (в зависимости от типа используемой фурнитуры).
Сертифицированные характеристики:
- Коэффициент сопротивления теплопередаче (Ro): до 0,90 м²°C/Вт (превосходит требования для жилых помещений).
- Звукоизоляция: до 42 дБ.
- Воздухопроницаемость: Класс 4 (высший уровень герметичности).
- Водонепроницаемость: Класс 9A (надежная защита от ливней).
Технология
Герметичность 100%

Фурнитура
Легкое скольжение

Дизайн
Панорамный вид

WDS SL 76
Гибрид слайдера и окна. 100% герметичность благодаря умному прижиму створки по всему периметру.
Варианты финансирования
Наслаждайтесь покупкой сейчас и платите за нее по частям, воспользовавшись нашими услугами по финансированию.
ПодробнееНе забудьте добавить
Дополнительные элементы и аксессуары, которые сделают ваш дом еще более комфортным
Москитные сетки
Ручки и запорные элементы
Ламинация
Декоративные элементы
Сравните с похожими профилями
Альтернативные решения от других производителей
WDS SL 60
Rehau High-Design Slide
Rehau Synego Slide
Rehau Panorama Swing
Доступно в вашем регионе
Мы работаем по всей Испании
Оставить отзыв
Отзывы клиентов
Узнайте, что говорят об этом
Пока нет отзывов. Будьте первым!
FAQs
Частые вопросы о WDS SL 76
В чем отличие от подъемно-сдвижных (HST) дверей?
Система Smart Slide (WDS SL 76) легче, герметичнее за счет прижима (а не опускания) и, что важно, значительно доступнее по цене, чем тяжелые алюминиевые HST порталы.
Есть ли порог у этой двери?
Конструкция рамы предполагает небольшой порожек (около 6 см), так как он необходим для обеспечения герметичного прижима створки снизу. Это плата за идеальную теплоизоляцию.
Насколько безопасно это окно?
Очень безопасно. Благодаря большому количеству точек запирания по периметру (которые срабатывают при повороте ручки), взломать такую створку методом отжима практически невозможно. Класс защиты до RC2.
Можно ли ламинировать?
Да, большие раздвижные двери шикарно смотрятся в ламинации "Антрацит" или "Черный ультраматовый", имитируя дорогой алюминий, но сохраняя тепло ПВХ.



















