Veka AluConnect — это уникальная конструкторская разработка, объединяющая преимущества двух материалов в единую неразрывную систему. В отличие от стандартных окон с алюминиевыми накладками, здесь алюминий является не просто декором, а несущим статическим элементом. Внешний алюминиевый контур берет на себя все статические нагрузки, что позволяет отказаться от стального армирования внутри профиля. Внутри же находится «теплое сердце» — многокамерный профиль из ПВХ, который обеспечивает высочайшую теплоизоляцию, недостижимую для обычных алюминиевых систем без дорогостоящих термомостов.
Система разработана специально для современной архитектуры: она имеет строгие прямоугольные формы, узкие переплеты и возможность порошковой окраски в любой цвет RAL. Благодаря жесткой связке алюминия и ПВХ, окно сохраняет идеальную геометрию при любых температурных перепадах. Это идеальный выбор для тех, кто хочет получить премиальный внешний вид алюминиевых окон, но не готов жертвовать домашним уютом и переплачивать за отопление.
Технические характеристики
Детали
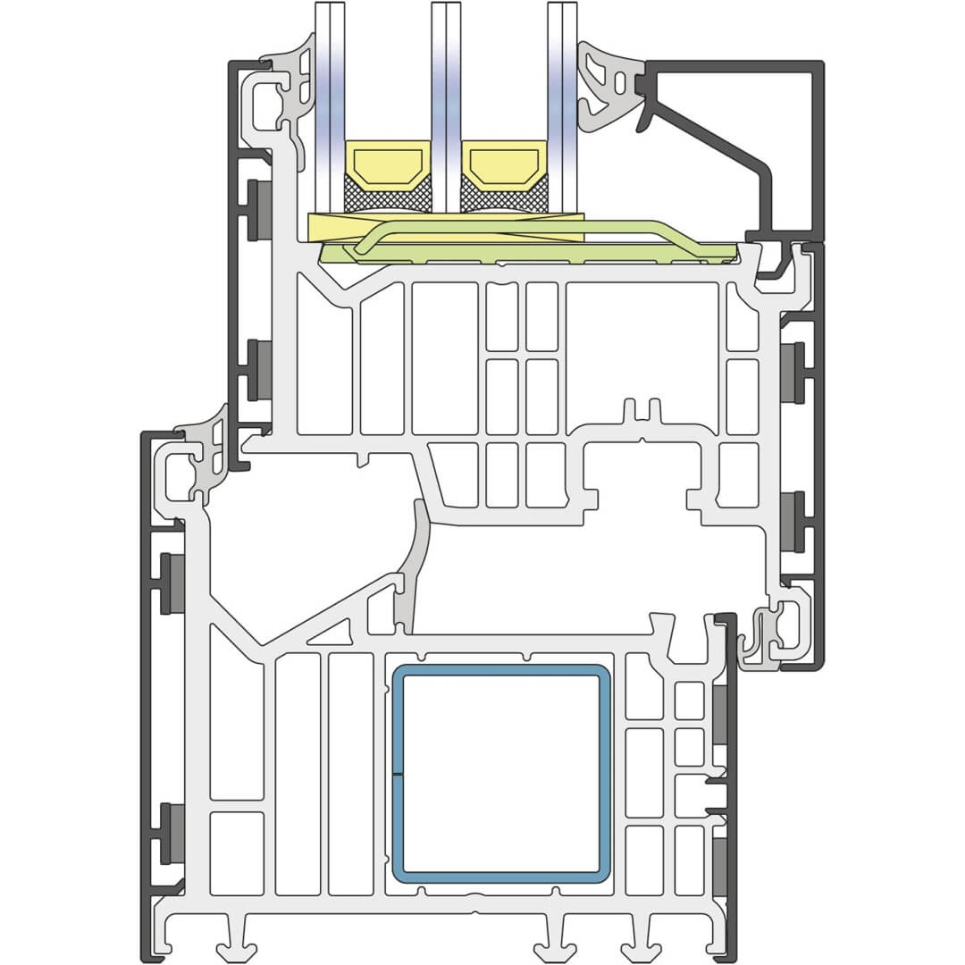
Революционный гибрид. Несущий алюминиевый профиль снаружи и теплый ПВХ-сердечник внутри. Дизайн алюминия с теплоизоляцией пластика.
Конструктивные параметры системы:
- Тип системы: Гибридная металлопластиковая система (структурное объединение). Не путать с накладками!
- Несущая часть: Алюминиевый профиль снаружи. Берет на себя всю статику и ветровые нагрузки.
- Изолирующая часть: ПВХ-профиль внутри. Обеспечивает теплоизоляцию «сердцевины» и отсутствие мостиков холода.
- Монтажная глубина: 82 мм (совместимость с доборными профилями системы Softline 82).
- Армирование: Стальное армирование обычно не требуется (алюминиевый контур обеспечивает достаточную жесткость).
- Уплотнение: 3 контура уплотнения (система MD). Средний контур интегрирован в ПВХ-часть.
Возможности остекления и дизайна:
- Максимальная толщина заполнения: до 58 мм (рекордный показатель для стандартных серий).
- Технология фиксации: Возможность вклейки стеклопакета в створку для создания цельностеклянного эффекта и максимальной жесткости.
- Дизайн углов: Алюминий стыкуется механически или прессуется (нет сварного шва как на ПВХ), внутри ПВХ сваривается для герметичности.
- Покрытие: Порошковая окраска в любой RAL, анодирование, возможность декорирования «под дерево» (сублимация).
Геометрия и особенности:
- Визуальный стиль: Лаконичный кубический дизайн, отсутствие штапиков (визуально), узкие переплеты.
- Форма створки: Смещенная или полусмещенная, возможность создания эффекта скрытой створки.
Сертифицированные характеристики:
- Теплоизоляция профиля (Uf): 1,1 Вт/м²K (лучше, чем у чистого алюминия с терморазрывом той же глубины).
- Приведенное сопротивление теплопередаче (R0): > 1,0 м²°C/Вт.
- Звукоизоляция: Высокие показатели за счет массивности и возможности установки триплексов до 58 мм.
- Взломостойкость: до класса RC2.
- Срок службы: Практически не ограничен (алюминий снаружи вечен, ПВХ внутри защищен от солнца).
Статика металла
Несущий алюминий

ПВХ внутри
Теплое сердце

Любой цвет RAL
Безграничный дизайн

Veka AluConnect
Революционный гибрид. Несущий алюминиевый профиль снаружи и теплый ПВХ-сердечник внутри. Дизайн алюминия с теплоизоляцией пластика.
Больше идей и вдохновения
Это несколько примеров наших работ с профилем Veka AluConnect. Все это вдохновение предназначено для вас и только для вас.
Мы работаем над актуальностью данных. Напишите нам если вам нужны свежие материалы.
Варианты финансирования
Наслаждайтесь покупкой сейчас и платите за нее по частям, воспользовавшись нашими услугами по финансированию.
ПодробнееНе забудьте добавить
Дополнительные элементы и аксессуары, которые сделают ваш дом еще более комфортным
Москитные сетки
Ручки и запорные элементы
Ламинация
Декоративные элементы
Сравните с похожими профилями
Альтернативные решения от других производителей
Veka Softline 70
Veka Softline 76
Veka Softline 82
Rehau Euro-design 70
Rehau Synego
Rehau Brillant-Design 70
Доступно в вашем регионе
Мы работаем по всей Испании
Оставить отзыв
Отзывы клиентов
Узнайте, что говорят об этом
Пока нет отзывов. Будьте первым!
FAQs
Частые вопросы о Veka AluConnect
В чем отличие от алюминиевых накладок на окна?
В окнах с накладками несущим является ПВХ-профиль с армированием, а алюминий — лишь декор. В AluConnect алюминий — это несущий скелет окна. Они соединены с ПВХ намертво в заводских условиях и работают как единое целое.
Зачем покупать AluConnect, если есть теплый алюминий?
AluConnect значительно теплее стандартного алюминия (Uf 1.1), так как внутри нет металла, проводящего холод, а есть теплый ПВХ. Плюс, стоимость AluConnect часто ниже премиальных алюминиевых систем с широкими термомостами.
Как выглядят углы на этих окнах?
Снаружи вы видите идеальный стык алюминия под 90 градусов (как на дорогих алюминиевых окнах), без зачищенного сварного шва, характерного для пластика. Внутри — аккуратный сварной шов ПВХ.
Можно ли красить окна в любой цвет?
Да, внешняя алюминиевая часть окрашивается порошковым методом в любой цвет RAL. Покрытие получается вандалостойким и не выгорает на солнце десятилетиями. Внутренняя часть может быть белой или ламинированной.
Нужно ли стальное армирование внутри?
В большинстве стандартных конструкций — нет. Замкнутый алюминиевый контур снаружи обеспечивает отличную статику, превосходящую обычное стальное армирование внутри ПВХ. Это также снижает вес створки.
Насколько толстый стеклопакет туда влезает?
Система позволяет ставить стеклопакеты до 58 мм. Это открывает доступ к использованию бронированных стекол, тяжелых акустических триплексов и трехкамерных пакетов для экстремального климата.

















