REHAU Geneo PHZ is an improved, high-tech PVC profile system for windows, designed specifically for buildings with the highest requirements for energy efficiency, in particular for passive houses. It is based on the innovative Geneo system and uses high-tech RAU-FIPRO X material, which provides exceptional strength and stability without the need for steel reinforcement, which is critical for achieving maximum thermal insulation. Thanks to an installation depth of 86 mm and optimized multi-chamber construction, the Geneo PHZ system achieves outstanding thermal insulation indicators corresponding to passive house standards.
Windows made from Geneo PHZ profile provide excellent sound insulation, effectively protecting the room from external noise, and offer a high level of burglary protection. The absence of steel reinforcement makes the profile lighter, which simplifies installation and handling. The smooth surface of the profiles facilitates maintenance. REHAU Geneo PHZ provides wide opportunities for architectural design thanks to the variety of shapes, colors and finishes, allowing the creation of elegant and functional solutions that fully meet the strict requirements of modern energy-efficient construction.
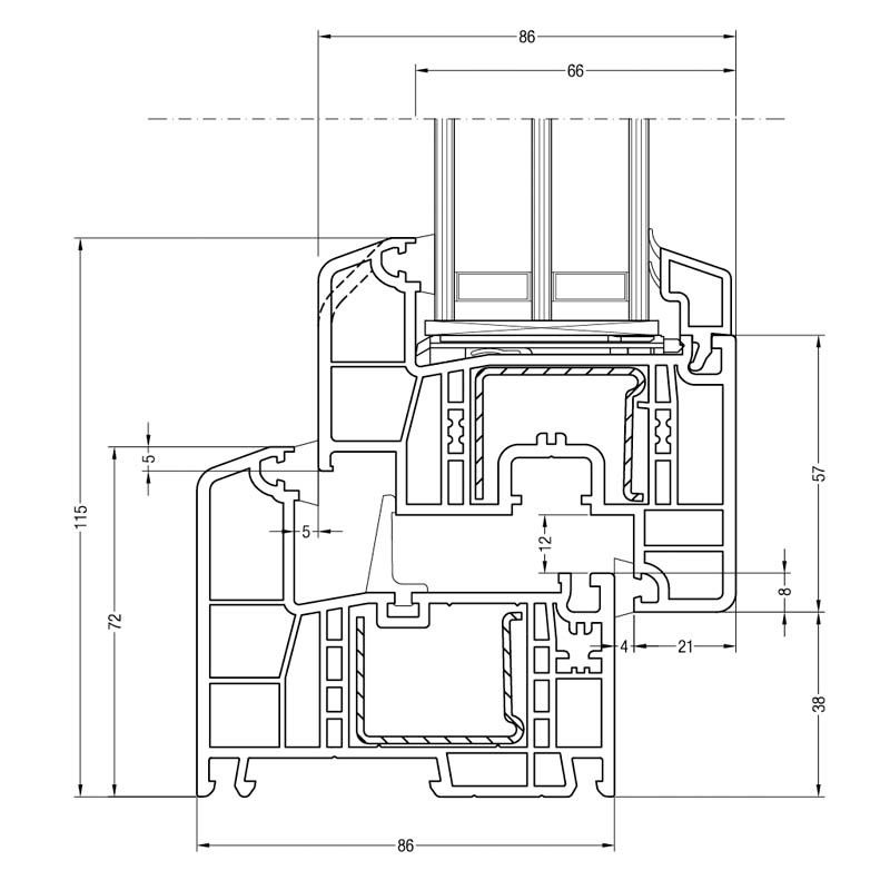
Technical Specifications
Details
Specialized version of Geneo with thermal modules, certified for passive houses, with record thermal insulation.
Design Features (Passive House Standard):
- Installation depth: 86 mm.
- Insulation technology: The main feature of the PHZ version is the use of thermal modules (special foam inserts) inside the functional chambers of the profile. This completely blocks air convection inside the frame.
- Profile material: RAU-FIPRO (fiberglass composite). Eliminates the need for steel reinforcement, removing the "thermal bridges" inherent to conventional windows.
- Sealing system: 3 circuits (MD). The PHZ version uses an upgraded middle sealing circuit to ensure the absolute airtightness required for passive houses.
- Surface: HDF (High Definition Finishing) — smooth, dirt-repellent surface.
Glazing Options:
- Maximum glass unit thickness: up to 53 mm.
- Mandatory requirement: To comply with the Passivhaus standard, the system is equipped with double-chamber glass units with inert gas (argon or krypton) and warm spacer frames.
- Glass unit bonding: The technology of bonding glazing into the sash increases structural rigidity and allows creation of large sashes without metal inside.
Certified Characteristics (Passivhaus Institut Darmstadt Certificate):
- Profile thermal insulation (Uf): 0.79 W/m²K. Achieved through the combination of RAU-FIPRO material and thermal modules.
- Window thermal insulation (Uw): up to 0.66 W/m²K (with glass unit installation Ug = 0.5 W/m²K). This value meets the strictest European standards for passive houses.
- Sound insulation (Rw,p): up to 47 dB.
- Burglary resistance: up to RC3 class.
- Air permeability: Class 4.
- Water tightness: Class 9A.
Easy care, long-lasting beauty.
Surface that shines

Let the sun into every corner.
Window full of light

Warmth and silence - your choice.
Home oasis

Reliability you can trust.
Calmness and protection

Lightness and stability in one.
Fortress without steel

Always fresh air, without worries.
Breathe freely

Rehau Geneo PHZ
Specialized version of Geneo with thermal modules, certified for passive houses, with record thermal insulation.
Financing Options
Enjoy your purchase now and pay for it in installments using our financing services.
More detailsDon't Forget to Add
Additional elements and accessories that will make your home even more comfortable
Mosquito Nets
Handles and Locking Elements
Lamination
Decorative Elements
Compare with Similar Profiles
Alternative solutions from other manufacturers
Rehau Euro-design 70
Rehau Synego
Rehau Brillant-Design 70
Kömmerling EuroFutur Elegance
Kömmerling Xtrem 76 AD
Kömmerling Xtrem 76 MD
Available in Your Region
We work throughout Spain
Leave a Review
Customer Reviews
Find out what people are saying about it
No reviews yet. Be the first!
FAQs
Frequently Asked Questions about Rehau Geneo PHZ
What is Geneo PHZ?
This is a version of Geneo for passive houses: 86 mm depth, RAU-FIPRO X composite and special thermal modules for maximum thermal insulation.
What energy efficiency values are achievable?
In energy-efficient configurations, Uw can drop to ≈0.72 W/m²·K and below, which meets passive house requirements.
What glass unit thickness and sound insulation?
Glass units up to 53 mm with warm spacer; sound insulation with proper selection - around up to 50 dB (Rw).
Is steel reinforcement needed?
As in Geneo, composite provides rigidity without steel in most cases. This reduces "cold bridges" and structure weight.
Are there any special installation requirements?
Yes, to achieve passive house parameters, warm installation nodes, perimeter sealing and thoughtful room ventilation are important.
Is it suitable for harsh climates?
Yes, the system was developed for minimal heat loss, so it is effective in cold regions and energy-strict projects.
Can it be combined with burglary protection and design?
Yes, configurations up to RC2/RC3, concealed hinges, designer handles and a wide palette of KALEIDO laminations are available.
Geneo PHZ or regular Geneo?
Geneo PHZ is chosen when maximum thermal efficiency is needed (passive house). If the tasks are simpler, standard Geneo is enough.





























