REHAU Eurodesign 70 is a high-quality PVC profile system for windows and doors, providing comfort, energy efficiency and security. The system has an installation depth of 70 mm and 5-chamber technology, which allows excellent thermal insulation and reduces heating costs. It also features high sound insulation, weather resistance and durability.
Eurodesign 70 profiles are easy to clean thanks to their smooth surface and provide enhanced burglary protection. The system offers a wide range of design solutions, including various shapes, colors and sash options, allowing it to harmoniously fit into any architectural style. It is a universal solution for both new construction and modernization, combining economy, quality and aesthetics.
Technical Specifications
Details
Classic 5-chamber system with 70 mm depth, reliable and economical for standard construction. HDF surface.
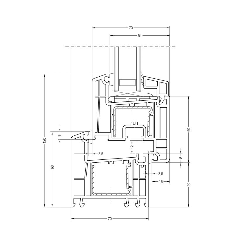
System Design Parameters:
- Installation depth: 70 mm (system depth for maximum heat retention).
- Profile construction: 5 chambers (in both frame and sash) — optimal structure for preventing thermal bridges.
- Surface design: Classic Softline design with elegant 15° bevels on visible front surfaces.
- Surface: HDF (High Definition Finishing) — Rehau's signature high-quality surface: perfectly smooth, with a glossy shine, extremely easy to maintain.
- Sealing: Two sealing circuits (seal overlap: 8 mm inside, 7 mm outside). Material: EPDM or TPE, color gray or black.
- Reinforcement: Galvanized steel profile (thickness 1.5–2.0 mm) in accordance with Rehau standards for structural rigidity.
Glazing and Infill Options:
- Maximum infill thickness: up to 41 mm.
- Glass unit types: Single-chamber (24 mm) and double-chamber energy-saving (32 mm, 40 mm), including with acoustic laminated glass.
- Glass unit mounting: Glazing beads with co-extruded seal for airtight compression.
Geometry and Dimensions (Window):
- Profile package height (frame + sash): Standard 109 mm — provides increased light opening.
- Maximum sash dimensions (White profile): Width up to 1500 mm / Height up to 1500 mm (for windows) or up to 2300 mm (for balcony doors).
- Maximum sash dimensions (Colored profile): It is recommended to reduce maximum dimensions by 20% to avoid deformation when heated.
Certified Characteristics (according to DIN EN 14351-1):
- Profile thermal insulation (Uf): 1.3 W/m²K.
- Reduced heat transfer resistance (R0): 0.77–0.80 m²°C/W (without reinforcement can reach higher values).
- Sound insulation (Rw): up to 45 dB (with special soundproof glass unit installed).
- Burglary resistance: up to RC2 class (ENV 1627) with appropriate hardware.
- Air permeability: Class 4 (highest according to EN 12207).
- Water tightness: Class 9A (according to EN 12208, rain protection).
- Service life: More than 40-50 conditional years of operation.
Through the years
HDF surface

Caring for you
More light

Home comfort
Warm and quiet windows

Hardware
Comfort and durability

Strength and construction
Reliability without compromise

Micro-ventilation
Fresh air without drafts

Rehau Euro-design 70
Classic 5-chamber system with 70 mm depth, reliable and economical for standard construction. HDF surface.
More Ideas and Inspiration
These are some examples of our work with Rehau Euro-design 70 profile. All this inspiration is for you and only for you.
We are working on keeping data up-to-date. Contact us if you need fresh materials.
Financing Options
Enjoy your purchase now and pay for it in installments using our financing services.
More detailsDon't Forget to Add
Additional elements and accessories that will make your home even more comfortable
Mosquito Nets
Handles and Locking Elements
Lamination
Decorative Elements
Compare with Similar Profiles
Alternative solutions from other manufacturers
Rehau Synego
Rehau Brillant-Design 70
Rehau Brillant-Design 80
Kömmerling EuroFutur Elegance
Kömmerling Xtrem 76 AD
Kömmerling Xtrem 76 MD
Available in Your Region
We work throughout Spain
Leave a Review
Customer Reviews
Find out what people are saying about it
No reviews yet. Be the first!
FAQs
Frequently Asked Questions about Rehau Euro-design 70
How does Euro-design 70 differ from other REHAU systems?
It is a classic 5-chamber system with an installation depth of 70 mm. It provides balanced heat/noise performance at an affordable price and is suitable for new construction and renovations.
What is the maximum glass unit thickness suitable?
Up to 40 mm - this allows the use of energy-saving double and triple glazed units with warm spacer.
Is it suitable for a noisy street?
Yes, the basic sound insulation of the system ≈43 dB (Rw) with the correct glass unit configuration, which is sufficient for most urban conditions.
Is steel reinforcement needed?
Yes, Euro-design 70 frames and sashes use steel reinforcement for rigidity, especially for large sizes and/or lamination.
What design options are available?
Smooth HDF surface, various bead shapes, wood and RAL laminations, decorative handles and concealed hardware on request.
What sash sizes are acceptable?
Recommended limits - up to ~1.3-1.4 m in width for tilt-and-turn sashes (depend on hardware/glass unit); exact dimensions are agreed upon during calculation.
Are there security and ventilation options?
Available anti-burglary configurations up to RC2, child locks, micro-ventilation, slot and stepped ventilation, supply valves.
How does Euro-design 70 differ from Brillant-Design 70?
Both systems are 70 mm and 5-chamber; Brillant-Design 70 - with an emphasis on premium aesthetics and expanded design, Euro-design 70 - on practicality and price.


























