Veka Vekamove 76 — это прорыв в сегменте раздвижных конструкций, объединяющий лучшие черты подъемно-сдвижных дверей (HS) и наклонно-сдвижных систем (PSK). В отличие от стандартных слайдеров, здесь используется инновационный механизм запирания: створка смещается перпендикулярно раме, плотно прижимаясь к уплотнителям по всему периметру. Это обеспечивает абсолютную герметичность, защиту от косого дождя и уличного шума, что недостижимо для обычных раздвижных систем со щеточным уплотнением.
Система базируется на премиальной платформе Softline 76 (класс «А»), что гарантирует высокую жесткость и возможность создания створок большого формата. Управление интуитивно понятно и не требует физических усилий: поворот ручки мягко освобождает створку, и она плавно скользит по направляющим. Это идеальное решение для выхода на террасу или балкон, где важно сохранить полезное пространство и обеспечить максимальное светопропускание без потерь тепла.
Технические характеристики
Детали
Инновационная раздвижная система. Сочетает герметичность классического окна с удобством и панорамным обзором слайдинговых дверей.
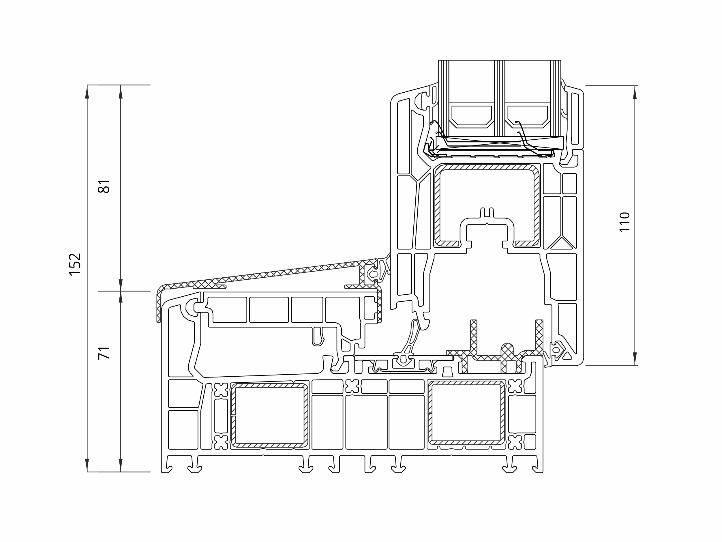
Конструктивные параметры системы:
- Тип системы: Герметичная раздвижная система (технология Smart Slide / Vekamove).
- Монтажная глубина рамы: 150 мм (обеспечивает высокую устойчивость конструкции в проеме).
- Монтажная глубина створки: 76 мм (совместимость с системой Softline 76).
- Класс профиля: Класс «А» (стенка 3 мм). Гарантирует отсутствие деформаций при больших размерах.
- Уплотнение: Замкнутый контур уплотнения из TPE/EPDM без разрывов (в отличие от щеточных уплотнителей).
- Армирование: Усиленное стальное армирование в раме и створке для компенсации ветровых нагрузок на больших площадях.
Возможности остекления:
- Толщина стеклопакета: до 48 мм.
- Типы стеклопакетов: Возможность установки теплых двухкамерных пакетов, триплекса и закаленного стекла (рекомендуется для безопасности).
- Глубина посадки стекла: 25 мм (минимизация риска образования конденсата).
Геометрия и эксплуатация:
- Максимальные размеры: Ширина конструкции до 4,5 метров, ширина створки до 2,0 метров.
- Схема открывания: Схема А (одна створка глухая, одна подвижная) или Схема С (две раздвижные створки).
- Порог: Рамный порог (замкнутая рама) для максимальной теплоизоляции.
Технические показатели:
- Теплоизоляция (Uf): 1,3 Вт/м²K (общий Uw окна может достигать 0,8 Вт/м²K с теплым пакетом).
- Воздухопроницаемость: Класс 4 (наивысший, полное отсутствие продувания).
- Водонепроницаемость: Класс 9A.
Нет сквознякам
Абсолютная герметичность

Интуитивное управление
Легкость движения

Больше света
Панорамный обзор

Veka Vekamove 76
Инновационная раздвижная система. Сочетает герметичность классического окна с удобством и панорамным обзором слайдинговых дверей.
Больше идей и вдохновения
Это несколько примеров наших работ с профилем Veka Vekamove 76. Все это вдохновение предназначено для вас и только для вас.
Мы работаем над актуальностью данных. Напишите нам если вам нужны свежие материалы.
Варианты финансирования
Наслаждайтесь покупкой сейчас и платите за нее по частям, воспользовавшись нашими услугами по финансированию.
ПодробнееНе забудьте добавить
Дополнительные элементы и аксессуары, которые сделают ваш дом еще более комфортным
Москитные сетки
Ручки и запорные элементы
Ламинация
Декоративные элементы
Сравните с похожими профилями
Альтернативные решения от других производителей
Veka Vekamotion 82
Veka Vekamotion 82 MAX
Rehau High-Design Slide
Rehau Synego Slide
Rehau Panorama Swing
Доступно в вашем регионе
Мы работаем по всей Испании
Оставить отзыв
Отзывы клиентов
Узнайте, что говорят об этом
Пока нет отзывов. Будьте первым!
FAQs
Частые вопросы о Veka Vekamove 76
Чем Vekamove отличается от обычного патио (PSK)?
Главное отличие — удобство. В PSK нужно тянуть тяжелую створку на себя, а сложная фурнитура часто ломается. В Vekamove створка просто едет вбок. Кроме того, Vekamove не "съедает" пространство внутри комнаты при открывании.
Это теплее, чем подъемно-сдвижная дверь (HS)?
По теплоизоляции Vekamove сопоставима с HS-порталами, а иногда и превосходит их благодаря более плотному контуру прижима уплотнителя (при условии замкнутой рамы). При этом стоимость Vekamove, как правило, ниже.
Можно ли ставить такую систему в спальню?
Да, безусловно. Высокая герметичность (класс 4 по воздухопроницаемости) и отличная шумоизоляция (до 43 дБ) делают эту систему пригодной для любых жилых помещений, включая спальни и детские.
Какой порог у этой двери?
В системе используется рамный порог. Это значит, что внизу будет профиль рамы (как у обычного окна), что необходимо для максимального тепла. Это не «безбарьерный» порог в уровень пола, но он гарантирует отсутствие промерзания.
Можно ли ламинировать Vekamove?
Да, профиль доступен во всей палитре цветов Veka, включая премиальную матовую поверхность Spectral. Все видимые части рамы и створки ламинируются, создавая целостный вид.
Насколько надежна фурнитура?
Система использует специальную фурнитуру (например, Roto Patio Inowa или аналог Siegenia), разработанную специально для такого типа открывания. Она имеет меньше трущихся деталей, чем PSK, и рассчитана на десятки тысяч циклов.















