Schüco AWS 90.SI+ — это инженерный шедевр, объединяющий несочетаемое: холодный металл и теплоизоляцию уровня дерева или премиального ПВХ. Эта система официально сертифицирована Институтом пассивного дома (PHI Darmstadt) как компонент для энергоэффективного строительства.
Идеальный выбор для тех, кто строит дом будущего с нулевым потреблением энергии, но не хочет отказываться от элегантности алюминия, узких переплетов и панорамных форматов.
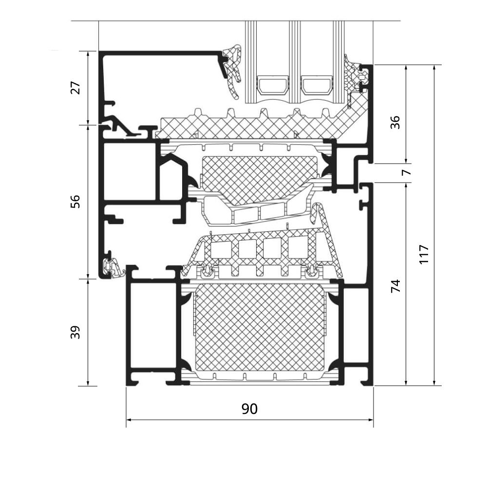
Технические характеристики
Детали
Абсолютный максимум. Алюминиевая система стандарта «Пассивный дом» с монтажной глубиной 90 мм.
Конструктивные параметры системы:
- Монтажная глубина: 90 мм.
- Технология теплоизоляции: Оптимизированная зона терморазрыва с длинными полиамидными мостами и вставками из вспененного материала, полностью исключающими промерзание.
- Уплотнение: Трехконтурное уплотнение с объемным центральным лепестком, обеспечивающим герметичность даже при ураганном ветре.
- Дизайн: Видимая ширина переплетов от 117 мм. Возможность использования скрытой фурнитуры для минималистичного внешнего вида.
- Экологичность: Система имеет сертификат Cradle to Cradle (серебряный уровень), подтверждающий безопасность материалов и возможность полной переработки.
Возможности остекления:
- Толщина заполнения: до 68 мм.
- Типы стеклопакетов: Рассчитана на установку тяжелых трехкамерных стеклопакетов (4 стекла) или двухкамерных с толстыми триплексами.
Сертифицированные характеристики:
- Теплоизоляция (Uf): от 0,71 Вт/м²K (рама).
- Теплоизоляция окна (Uw): ≤ 0,8 Вт/м²K (с соответствующим стеклопакетом).
- Звукоизоляция (Rw): до 47 дБ.
- Взломостойкость: до класса RC3 (ранее WK3).
- Воздухопроницаемость: Класс 4.
- Водонепроницаемость: Класс 9A.
Максимум тепла
Стандарт Passivhaus

Большие форматы
Тяжеловес

С заботой о нас
Зеленый сертификат

Schüco AWS 90.SI+
Абсолютный максимум. Алюминиевая система стандарта «Пассивный дом» с монтажной глубиной 90 мм.
Больше идей и вдохновения
Это несколько примеров наших работ с профилем Schüco AWS 90.SI+. Все это вдохновение предназначено для вас и только для вас.
Мы работаем над актуальностью данных. Напишите нам если вам нужны свежие материалы.
Варианты финансирования
Наслаждайтесь покупкой сейчас и платите за нее по частям, воспользовавшись нашими услугами по финансированию.
ПодробнееНе забудьте добавить
Дополнительные элементы и аксессуары, которые сделают ваш дом еще более комфортным
Москитные сетки
Ручки и запорные элементы
Ламинация
Декоративные элементы
Сравните с похожими профилями
Альтернативные решения от других производителей
Schüco AWS 65
Schüco AWS 75.SI+
Schüco AWS 75 PD.SI
Cortizo COR 60
Cortizo COR 70 Industrial
Cortizo COR 70 Hoja Oculta
Оставить отзыв
Отзывы клиентов
Узнайте, что говорят об этом
Пока нет отзывов. Будьте первым!
FAQs
Частые вопросы о Schüco AWS 90.SI+
Зачем нужна глубина 90 мм?
Увеличенная глубина необходима для размещения расширенной зоны терморазрыва и установки сверхтолстых стеклопакетов (до 68 мм), которые физически не влезут в стандартные системы.
Сильно ли оно отличается от 75.SI+?
Разница в теплоизоляции ощутима: Uf у 90-й серии составляет 0.71–1.0 против 0.9–1.3 у 75-й. Это критично для пассивных домов, где каждый Ватт потерь на счету.
Не будет ли темно в комнате из-за широких рам?
Нет, инженеры Schüco сохранили видимую ширину переплета (рама+створка) на уровне 117 мм, что сопоставимо с обычными окнами. Световой проем не страдает.
Можно ли комбинировать с дверями?
Да, система полностью совместима с дверной серией ADS 90.SI, создавая единый тепловой контур здания для входных групп и выходов на террасу.
Окно не промерзнет в -40°C?
Исключено. Технология вспененных термомостов разработана специально для экстремальных условий и обеспечивает температуру на внутренней поверхности профиля выше точки росы даже в сильные морозы.
Какая максимальная защита от шума?
Благодаря толстым стеклам (например, два триплекса в составе пакета) и массивности профиля, звукоизоляция достигает 47–48 дБ, создавая акустический комфорт даже рядом с аэропортом.

















