Schüco ASE 80.HI — это технологическая вершина в линейке раздвижных систем Schüco. Благодаря увеличенной глубине створки (80 мм) и специальным вставкам из вспененного материала в зоне терморазрыва, эта система обеспечивает теплоизоляцию на уровне стандарта «Passivhaus». Это позволяет создавать полностью стеклянные стены в коттеджах даже в северных регионах без риска холода и сквозняков.
Как и в 60-й серии, здесь доступны дизайнерские решения DesignLine с минимальной шириной стыка створок (40 мм) и полностью скрытой фурнитурой, что делает массивную и теплую конструкцию визуально легкой и воздушной.
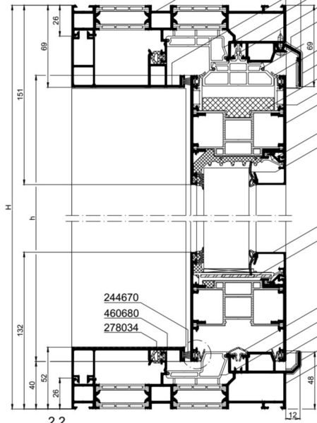
Технические характеристики
Детали
Эстетика пассивного дома. Высокоизолированная раздвижная система с глубиной створки 80 мм для максимального энергосбережения.
Конструктивные параметры системы:
- Монтажная глубина рамы: 180 мм (для 2-х направляющих).
- Монтажная глубина створки: 80 мм.
- Технология HI (High Insulation): Внутри центральной зоны терморазрыва установлены специальные пенонаполнители, блокирующие конвекцию воздуха.
- Дизайн: Доступна версия DesignLine с узким переплетом 40 мм и порог «на уровне пола» для безбарьерной среды.
- Фурнитура: Скрытая, с поддержкой SmartClose (мягкое закрывание) и механического усиления ручки (легкий подъем тяжелой створки).
Возможности остекления:
- Максимальная толщина заполнения: до 60 мм.
- Типы стеклопакетов: Позволяет устанавливать двухкамерные пакеты с триплексом и толстыми стеклами для максимальной звукоизоляции и безопасности.
Сертифицированные характеристики:
- Теплоизоляция (Uw): до 0,80 Вт/м²K (стандарт пассивного дома).
- Звукоизоляция (Rw): до 43 дБ.
- Взломостойкость: до класса RC2.
- Воздухопроницаемость: Класс 4.
- Максимальный вес: до 600 кг (TipTronic).
Максимум тепла
Технология HI

Единое пространство
Безбарьерный порог

Масштаб
Тяжелые створки

Schüco ASE 80.HI
Эстетика пассивного дома. Высокоизолированная раздвижная система с глубиной створки 80 мм для максимального энергосбережения.
Больше идей и вдохновения
Это несколько примеров наших работ с профилем Schüco ASE 80.HI. Все это вдохновение предназначено для вас и только для вас.
Мы работаем над актуальностью данных. Напишите нам если вам нужны свежие материалы.
Варианты финансирования
Наслаждайтесь покупкой сейчас и платите за нее по частям, воспользовавшись нашими услугами по финансированию.
ПодробнееНе забудьте добавить
Дополнительные элементы и аксессуары, которые сделают ваш дом еще более комфортным
Москитные сетки
Ручки и запорные элементы
Ламинация
Декоративные элементы
Сравните с похожими профилями
Альтернативные решения от других производителей
Schüco ASE 60
Schüco ASE 67 PD
Cortizo COR 4200
Cortizo 4900 Corredera
Cortizo COR Vision
Оставить отзыв
Отзывы клиентов
Узнайте, что говорят об этом
Пока нет отзывов. Будьте первым!
FAQs
Частые вопросы о Schüco ASE 80.HI
В чем главное отличие от ASE 60?
Глубина профиля (80 мм против 60 мм) и наличие вспененных вставок. ASE 80.HI значительно теплее и позволяет устанавливать более толстые и тяжелые стеклопакеты (до 60 мм).
Подходит ли для пассивного дома?
Да, при использовании энергоэффективного стеклопакета система ASE 80.HI соответствует строгим критериям Passive House Institute.
Не будет ли промерзать порог?
Нет, порог имеет сложную конструкцию с терморазрывом и композитными материалами, что исключает промерзание даже при монтаже «в пол».
Как управлять огромной створкой?
В ручном режиме помогают пружинные усилители в ручке, снижающие усилие подъема. Для максимального комфорта рекомендуется скрытый привод TipTronic (открывание с кнопки/смартфона).
Можно ли сделать угол полностью стеклянным?
Да, система позволяет реализовать открывающийся угол 90° без стационарной стойки. При открывании створок угол дома остается полностью свободным.
Есть ли защита от насекомых?
Schüco предлагает интегрированные москитные сетки и плиссе, которые могут быть встроены в конструкцию рамы и не портят внешний вид.















